
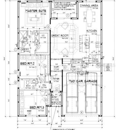
Under Construction. New Construction Home - Coming Soon in Sanford.Welcome to 2640 Oak Ave, a beautifully designed new construction home currently under construction in one of Sanford's most convenient locations. This home will feature 3 bedrooms, 2 bathrooms, and 1,585 sq ft of living space, plus a 2-car garage, offering the perfect combination of modern design and comfortable living.Construction is already well underway with framing completed and rough-ins for electrical, plumbing, and HVAC in...Under Construction. New Construction Home - Coming Soon in Sanford.Welcome to 2640 Oak Ave, a beautifully designed new construction home currently under construction in one of Sanford's most convenient locations. This home will feature 3 bedrooms, 2 bathrooms, and 1,585 sq ft of living space, plus a 2-car garage, offering the perfect combination of modern design and comfortable living.Construction is already well underway with framing completed and rough-ins for electrical, plumbing, and HVAC installed. Estimated completion is in approximately 4 months, giving buyers the opportunity to secure a brand-new home before it hits the market fully completed. The open layout will provide a spacious living area, modern kitchen, and well-designed bedrooms ideal for everyday living.The property is located just minutes from Historic Downtown Sanford, known for its restaurants, breweries, waterfront parks, and community events. It is also conveniently located near Orlando Sanford International Airport, making travel easy. With No HOA and No CDD, this property offers flexibility and lower monthly expenses compared to many newer communities.Ask about preferred lender incentives that may help reduce closing costs or provide options to buy down the interest rate for qualified buyers.Home is currently under construction. Visitors may tour the property but must exercise caution while inside the construction site. Builder and listing agent are not responsible for accidents while touring the property.
View MoreCourtesy of
Agency Name: ZARIA REALTY GROUP LLC
Agency Contact: 407-470-8961
Agent Name: Beisi Moreno
Presented by
Agent Name: Tara Lorfils
Agent Phone: 754.801.9418
Agency Title: The Keyes Company
Send an email with a link to
2640 Oak Avenue , Sanford, FL 32773.
Email 2640 Oak Avenue , Sanford, FL 32773
Thank you for your inquiry! As a thank you, we have a Special Mortgage Offer for You.
We would like to provide you a free, no-obligation, home loan pre-approval review.